Toggle navigation
Home
About Us
Profile
Management
Founders Note
Projects
Current Projects
Completed Projects
Why Us ?
NRI Guide
Interiors
Testimonials
Contact
Deccan Arcade II
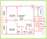
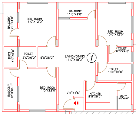
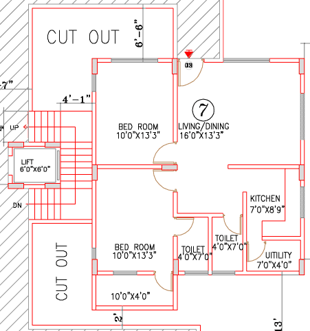
Individual Floor Plans
Projects
Current Projects
* Click the image to view bigger picture
1,6
2,3,4,5
7
8,9,10,11
12
13
14,15,16,17,18
Quick Contact
IVR no : 8880 157 157